Проектирование частного дома — основа комфортного и продуманного жилья
Проектирование частного дома является одним из ключевых этапов на пути к созданию комфортного и функционального жилья. Именно на стадии проектирования закладываются архитектурные решения, планировка помещений, инженерные системы и будущий уровень энергоэффективности здания. Грамотно разработанный проект дома позволяет избежать ошибок в строительстве, оптимизировать бюджет и получить дом, полностью соответствующий потребностям семьи.

Почему проектирование дома так важно
Многие застройщики недооценивают значение качественного проекта, однако именно он определяет удобство эксплуатации дома на десятилетия вперёд.
Основные задачи проектирования:
- Рациональное использование площади участка и дома.
- Продуманная планировка жилых и технических помещений.
- Обеспечение безопасности и надёжности конструкций.
- Снижение затрат на строительство и дальнейшее обслуживание.
Проект дома учитывает не только внешний вид, но и климатические условия, ориентацию по сторонам света, особенности грунта и уровень инсоляции.
Этапы проектирования частного дома
Процесс проектирования состоит из нескольких последовательных шагов, каждый из которых имеет важное значение.
1. Анализ участка и потребностей заказчика
На первом этапе изучаются размеры участка, рельеф, коммуникации и пожелания будущих владельцев. Определяется этажность, площадь и функциональное назначение дома.
2. Разработка архитектурной концепции
Создаётся общий образ здания, подбирается стиль, форма крыши, фасадные решения. Формируется предварительная планировка помещений.
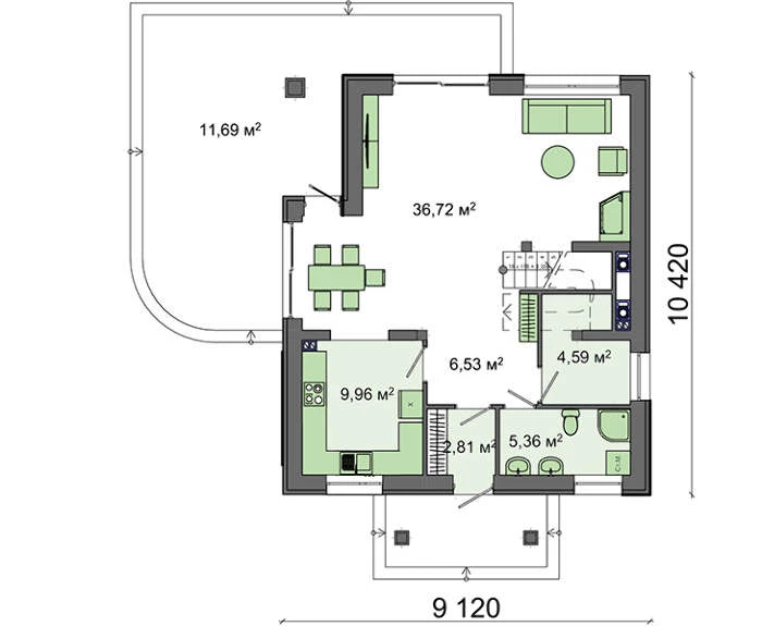
3. Проектирование планировки
Прорабатываются расположение комнат, санузлов, лестниц, технических помещений. Учитывается удобство перемещения и зонирование пространства.
4. Инженерные системы
В проект включаются схемы отопления, водоснабжения, канализации, электроснабжения и вентиляции.
5. Подготовка рабочей документации
Финальный этап включает чертежи, расчёты и спецификации, необходимые для строительства.

Индивидуальный или типовой проект: что выбрать
При выборе проекта будущего дома часто возникает вопрос между типовым и индивидуальным решением.
Сравнение вариантов:
- Типовой проект — более доступный по стоимости и срокам, подходит для стандартных участков.
- Индивидуальный проект — учитывает все особенности участка и пожелания заказчика, но требует больше времени на разработку.
Выбор зависит от бюджета, сроков и требований к будущему дому.
Основные преимущества профессионального проектирования
Обращение к специалистам даёт целый ряд преимуществ:
- Экономия средств за счёт точных расчётов.
- Снижение рисков строительных ошибок.
- Соответствие строительным нормам и требованиям.
- Возможность заранее увидеть будущий дом и внести правки.
Проектирование как инвестиция в качество жизни
Проектирование частного дома — это не формальность, а стратегический этап строительства. Грамотно разработанный проект обеспечивает комфорт, безопасность и долговечность жилья, а также позволяет создать дом, который будет полностью соответствовать образу жизни владельцев. Вложение в качественный проект всегда оправдывает себя в процессе строительства и дальнейшей эксплуатации.


